 
          
        
      
ル・ノール桑園公園
CONCEPT
自然と共に育む。心豊かな暮らし。
ゆとりある住空間と豊富な収納、緑豊かな公園に面した良い環境を提供致します。
 
             
             
            CHARM
ル・ノール桑園公園の魅力
- 
                               ゆとりある住空間と豊富な収納2LDKを中心に、ゆったりと開放感のある4タイプの間取りをご用意しました。全洋室にクローゼットを備え、全戸分のトランクルームも完備するなど、収納面も充実した使い勝手の良い住空間をご提供します。また、1階の3LDK(Dタイプ)は居間・洋室の全室がテラスに面した南向きです。 
- 
                               高い省エネ性能を実現断熱性能の向上、省エネ設備等の導入により、年間の一次エネルギー消費量を20%以上削減し、第三者評価BELSにて「ZEH-M Oriented(ゼッチ-マンション オリエンテッド)の認証を取得しました。 
- 
                               緑豊かな公園に面した暮らし良い環境都心にありながら、木立に包まれた桑園公園がすぐ目の前にあり、夏は緑、秋には紅葉など四季折々の景色が広がります。近隣にはJR桑園駅やショッピング施設、小学校、病院など利便性の高い施設が充実しており、様々なライフスタイルにお応えできる住環境です。 
― 物件紹介MOVIE
生活のしやすさを追求した空間
FACILITY
- 
                                3面ミラーキャビネット洗面台鏡内も棚になっているため、身支度備品を多く収納可能です。 
- 
                                冷房エアコンエアコンで室内を涼しく過ごすことが出来ます。 
- 
                                防犯カメラ玄関はオートロック対応。防犯カメラでセキュリティも安心です。 
- 
                                都市ガス光熱費を抑えたい方にうれしい都市ガス設備完備! 
GALLERY
間取り図・ギャラリー
- 
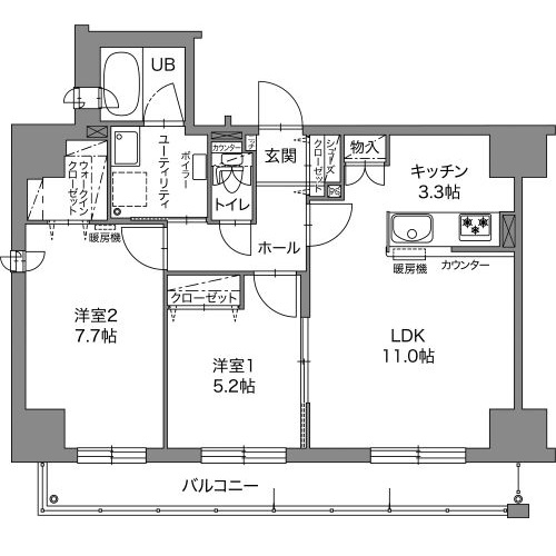
                2LDK(Aタイプ)間取図
- 
                2LDK(Bタイプ)間取図
- 
                2LDK(Cタイプ)間取図
- 
                3LDK(Dタイプ)間取図
- 
                エントランス
- 
                入口外観
- 
                1階テラス
- 
                キッチン
- 
                バルコニーからの眺望
物件概要
OVERVIEW
- 物件種別
- マンション
- 物件名
- ル・ノール桑園公園
- 所在地
- 札幌市中央区北8条西18丁目2-3
- 総戸数
- 28戸
- 構造
- 鉄筋コンクリート造10階建
- 竣工
- 2025(令和7)年2月
- 間取タイプ
- 3LDK(1戸)、2LDK(27戸)
- 駐車場
- 有
2025.10.29更新
取り扱い店舗
CONTACT
 
                  株式会社エッセ 札幌本社
- 札幌市中央区北4条西6丁目1番3号 北四条ビル 2階
- 免許番号:北海道知事 石狩(5)第7045号
- TEL:011-242-2220
- FAX:011-242-2233
- 定休日:土日祝